Меню сайта

Устройства вводно-распределительные ВРУ

Вводно-распределительные устройства предназначены для приема, распределения и учета электроэнергии напряжением 400/230В в сетях трехфазного переменного тока частотой 50Гц, для защиты линий при коротких замыканиях и перегрузках, а также для нечастых оперативных включений и отключений.

Металлический корпус ВРУ может быть сварной или разборной конструкции. Съемный цоколь упрощает работы по монтажу корпусов на объекте. Ввод и вывод проводов и кабелей осуществляются снизу шкафа.

ВРУ соответствуют требованиям ГОСТ 19734-80 и применяются в жилых, общественных зданиях и сооружениях; административных и бытовых зданиях.

Название Обозначение Габариты: HxLxB Вес, кг Цена, бел. руб. без НДС
Корпус ВРУ, сварной, 1дв., цоколь 120мм
Исполнение IP31
ВРУ-1720-800-450-76-УХЛ3-IP31 1720х800х450 53 236,35
Корпус ВРУ, сварной, 1дв., цоколь 120мм
Исполнение IP54
ВРУ-1720-800-450-76-УХЛ3-IP54 1720х800х450 53 243,39
Корпус ВРУ, разборный, 1дв., без цоколя
Исполнение IP31
ВРУ-1700-800-450-76-УХЛ3-IP31 1700х800х450 50 236,68
Корпус ВРУ, разборный, 2дв., без цоколя
Исполнение IP31
ВРУ-1700-800-450-76-УХЛ3-IP31-2 1700х800х450 53 286,36
Корпус ВРУ, сварной, 1дв., цоколь 120мм, с монтажными швеллерами (8шт.)
Исполнение IP31
ВРУ-1720-800-450-76-УХЛ3-IP31 1720х800х450 66 292,51
Корпус ВРУ, сварной, 1дв., цоколь 120мм, с монтажными швеллерами (8шт.)
Исполнение IP54
ВРУ-1720-800-450-76-УХЛ3-IP54 1720х800х450 66 300,98
Монтажная панель ВРУ 1333х733х17 13 54,09

Комплектация: корпус, знаки электробезопасности, замки М22 с ключом.

Расшифровка обозначений: ВРУ-1720-800-450-76-УХЛ3-IP31 (IP54)

  • ВРУ – корпус ВРУ
  • 1720-800-450 – габаритные размеры ВхШхГ мм
  • 7 – тип покрытия - ППК/шагрень 6 – цвет краски RAL 7035 (или другой по заказу).
  • УХЛ3 – климатическое исполнение по ГОСТ15150
  • IP31, IP54 – степень защиты по ГОСТ 14254

Основные параметры и характеристики.

Наименование показателя Значение
Номинальное напряжение, В 400
Номинальная частота, Гц 50
Номинальный ток шкафа, А (не более) 630
Номинальный ток аппаратов ввода, А (не более) 630
Номинальный ток аппаратов распределения, А (не более) 400
Предельная коммутационная способность аппаратов распределения, кА (не более) 1,5
Номинальный ударный ток к.з. на шинах, кА (не более) 10
Номинальный режим работы Продолжительный
Исполнение по способу установки Напольное
Срок службы, лет (не менее) 25

Структура условного обозначения

Вводно-распределительные устройства представляют собой панели одностороннего обслуживания, которые могут объединяться в щиты (многопанельное исполнение).

В качестве аппаратуры ввода, распределения и защиты во ВРУ используют рубильники, переключатели, автоматические выключатели, предохранители. По заказу могут устанавливаться устройства защитного отключения (УЗО).

Дополнительно ВРУ могут оснащаться аппаратурой автоматического вода резерва (АВР) и блоками автоматического или диспетчерского управления освещением.

Функциональные блоки (АВР и управления освещением) выполняются в виде самостоятельных конструктивных устройств, встраиваемых во ВРУ.

Ввод питающих проводов и кабелей осуществляется снизу, а вывод отходящих проводов или кабелей – вверх и вниз. По требованию потребителя крышки ВРУ могут иметь отверстия для ввода и вывода проводников. Нижняя крышка панелей съемная.

Конструктивно во ВРУ обеспечивается возможность пломбирования испытательных блоков (коробок) с зажимами или сборок из наборных зажимов при использовании их в цепях учета.

Предусмотрено внутреннее освещение для обслуживания и ремонта ВРУ при отключенном вводном аппарате.

Панели имеют изолированную нулевую (N) и связанную с корпусом защитную (PE) шины, укомплектованные контактными зажимами.

Aliquam pulvinar orci ut nisl imperdiet
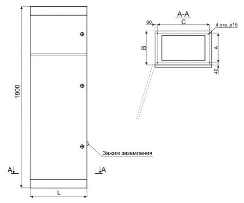
Рис. 1 Габаритные, установочные и присоединительные размеры ВРУ

Габаритные и установочные размеры.

Размеры, мм Масса, кг (не более)
L B A C D
500 300 220 380 60 65
800 450 370 680 60 97

Условия эсплуатации:

  • высота установки над уровнем моря не более 1000 м;
  • окружающая среда – атмосфера типа II по ГОСТ 15150-69, при этом должна быть взрывобезопасной, не содержащей токопроводящей пыли, агрессивных газов и паров в концентрациях, снижающих параметры изделия.

При заказе необходимо указать:

  • тип ВРУ в соответствии со структурой условного обозначения;
  • количество и номинальные токи плавких вставок предохранителей или тепловых максимальных расцепителей тока автоматических выключателей; уставки УЗО;
  • параметры трансформаторов тока;
  • для счетчиков прямого включения – номинальный ток и (или) тип счетчика;
  • для панели со степенью защиты IP54 ввод-вывод сверху (или снизу), количество сальников, тип и сечение отходящих кабелей или диаметр отверстий под вводы кабеля;
  • при отсутствии в заказе сведений о количестве и диаметре сальников или отверстий под вводы кабеля, панели поставляются без отверстий и сальников.