Меню сайта

Щитки этажные ЩЭ

Щитки этажные ЩЭ предназначены для учета, распределения и защиты электроустановок в жилых зданиях напряжением до 380/220 В переменного тока частоты 50 Гц. Щитки обеспечивают учет электроэнергии в однофазной сети, распределение и защиту от перегрузок и коротких замыканий каждого фидерного выхода, защиту от токов утечки на землю, установку электромонтажных изделий для присоединения телефонной, телевизионной и радиотрансляционной сети.

Щитки этажные соответствуют требованиям СТБ МЭК 60439-1-2007.

Щитки устанавливаются в нишах стен помещений жилых и общественных зданий.

В щитках может устанавливаться до пяти фидерных автоматических выключателей в одной группе (оговаривается в заказе).

Степень защиты оболочки щитков при закрытых дверях IP30, при открытых дверях IP20 по ГОСТ 14254-96.

Щитки имеют изолированную нулевую (N) и связанную с корпусом защитную (PE) шины, укомплектованные контактными зажимами.

Номинальный режим продолжительный.

Формулировка заказа

При заказе ЩЭ необходимо указать тип щитка в соответствии со структурой условного обозначения, количество и номинальные токи вводных и фидерных автоматических выключателей, для щитков с дифзащитой ввода – ток утечки (30мА или 300мА).

Структура условного обозначения

Aliquam pulvinar orci ut nisl imperdiet
Aliquam pulvinar orci ut nisl imperdiet
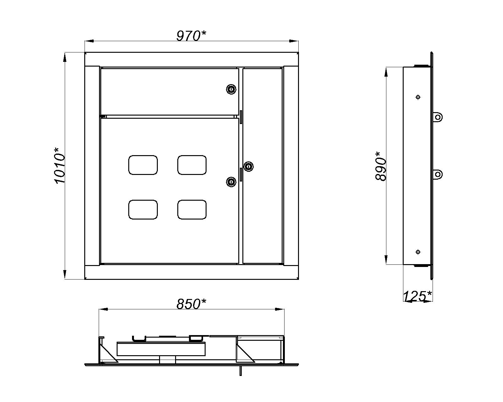
Рис. 1 Габаритные размеры ЩЭ со слаботочным отделением.
Aliquam pulvinar orci ut nisl imperdiet
Рис. 2 Габаритные размеры ЩЭ без слаботочного отделения.